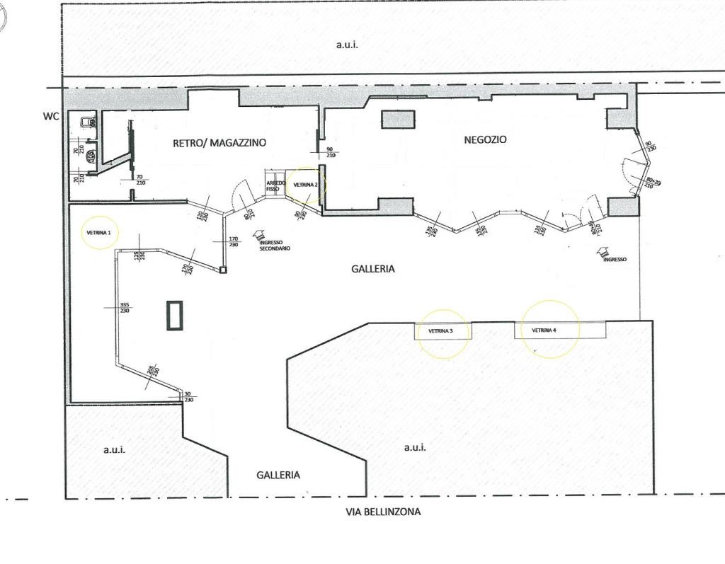
LOCALITA' PONTE CHIASSO ADIACENTE AL CONFINE ITALO-SVIZZERO VENDIAMO MURA NEGOZIO con retro/magazzino, ripostiglio, spogliatoio, bagno e ampi spazi dedicati a vetrina espositiva ubicati in galleria.
Per maggiori dettagli e per appuntamenti: Antonio Sansano + 39 340 328 5561
IMMOBILFIN
Via Mentana, 4 - 22100 Como

LOCALITA' PONTE CHIASSO ADIACENTE AL CONFINE ITALO-SVIZZERO VENDIAMO MURA NEGOZIO con retro/magazzino, ripostiglio, spogliatoio, bagno e ampi spazi dedicati a vetrina espositiva ubicati in galleria.
Per maggiori dettagli e per appuntamenti: Antonio Sansano + 39 340 328 5561
Riferimento: 470
Tipologia: Negozio
Arredato: %%Arredamento%%
Piano: Terra di 5
Ascensore:
Portineria:
Mq superficie: 85
Stato conservazione: Buono
Stato: Occupato Proprietario
N. Locali: 2
Tipo cucina:
N. Camere:
N. Bagni: 1
Box: Nessuno
Riscaldamento: Centralizzato gest. autonoma
Aria condizionata: No
Prezzo €: 99.000,00
Spese cond. annue €: 4.000,00
Caratteristiche
Efficienza energetica